Familian Development Group
Completed Projects
Client List
Finance Partners
Familian Realty Group
Property Listings
Companies we own
City Stop Stores
Nevada Gaming Partners
Contact Us
Website By Pureblend
Project Listings
 

865arielpicture_tn.jpg
csub_clickonphoto.GIF
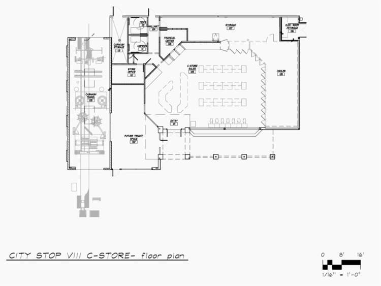
City Stop 8
Convenience Store & Car Wash
3970 Tenaya Way
Las Vegas, Nevada
 
City Stop 8 is a 5,000 square foot conveninence store including a Car Wash and a 612 square foot retail space. City Stop hangs the Shell Oil flag and is open 24 hours a day, 7 days a week. City Stop is the only Convenience Store chain in Clark County with US Post Office in each location. Currenty their are 10 City Stop Convenience Stores in the Las Vegas Valley.
428cs8map_tn.jpg
csub_clickonphoto.GIF

383cs8site_tn.jpg
csub_clickonphoto.GIF

976cs8floorplan_tn.jpg
csub_clickonphoto.GIF

272cs8elevation_tn.jpg
csub_clickonphoto.GIF

272cs8elevation_tn.jpg
csub_clickonphoto.GIF

  RECORDS FOUND:  PAGES  1 of  
Find Property Listings
   
Keyword 
Find

Familian Development Group • Familian Development Group • Familian Development Group • Familian Development Group • Familian Development Group