Familian Development Group
Completed Projects
Client List
Finance Partners
Familian Realty Group
Property Listings
Companies we own
City Stop Stores
Nevada Gaming Partners
Contact Us
Website By Pureblend
Project Listings
 

275jensenpicture_tn.jpg
csub_clickonphoto.GIF
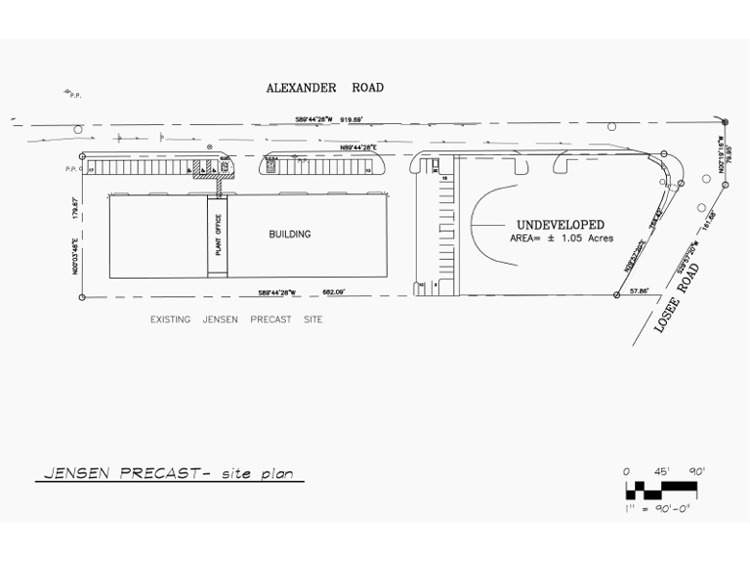
Jensen Precast
40,000 Sq.Ft. Manufacturing Facilty
2235 E. Alexander Road
North Las Vegas, Nevada
 
Jensen Precast was a design build project. The project consists of a 40,000 square foot metal building, including a 35 ton crane tract.
447jensenmap_tn.jpg
csub_clickonphoto.GIF

161jensensite_tn.jpg
csub_clickonphoto.GIF

882jensenelevation_tn.jpg
csub_clickonphoto.GIF

882jensenelevation_tn.jpg
csub_clickonphoto.GIF

  RECORDS FOUND:  PAGES  1 of  
Find Property Listings
   
Keyword 
Find

Familian Development Group • Familian Development Group • Familian Development Group • Familian Development Group • Familian Development Group