Familian Development Group
Completed Projects
Client List
Finance Partners
Familian Realty Group
Property Listings
Companies we own
City Stop Stores
Nevada Gaming Partners
Contact Us
Website By Pureblend
Property Listings
 
121alexander_tenayacitystop11x17_386v0002_tn.jpg
csub_clickonphoto.GIF
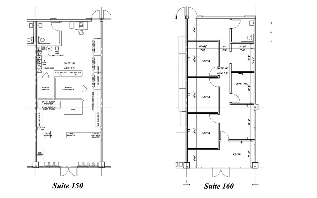
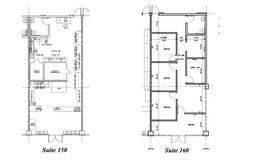
Tenaya & Alexander Shopping Center
3950 N. Tenaya Way
Las Vegas, Nevada
MAKE ANY OFFER!!!!!
Excellent Northwest Retail Property......across the street from a Las Vegas Park..must see...Great location to residential community...High traffic intersection...
Starting at $0.01psf
Now Available...1213 Square Feet
Download the Adobe Acrobat PDF document for this project.

066dsc00018_tn.jpg
csub_clickonphoto.GIF

786floorplan150160_tn.jpg
csub_clickonphoto.GIF

  RECORDS FOUND: 
Find Property Listings
    For Sale  For Lease   for Sale or Lease
Keyword 
Find

Familian Development Group • Familian Development Group • Familian Development Group • Familian Development Group • Familian Development Group