Familian Development Group
Completed Projects
Client List
Finance Partners
Familian Realty Group
Property Listings
Companies we own
City Stop Stores
Nevada Gaming Partners
Contact Us
Website By Pureblend
Project Listings
 

636hacpicture_tn.jpg
csub_clickonphoto.GIF
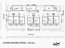
Hacienda & Cameron Business Center
11 Concrete tilt-up Buildings
Hacienda & Cameron
Las Vegas, Nevada
  Over 60,000 SF
This project consists of 11 Concrete Tilt-up Building. Phase 1 was built in 1998 and phase 2 was completed in 1999. Each building was sold to individual owners as owner user and as investments.
515haciendamap_tn.jpg
csub_clickonphoto.GIF

928haciendasiteplan_tn.jpg
csub_clickonphoto.GIF

  RECORDS FOUND:  PAGES  1 of  
Find Property Listings
   
Keyword 
Find

Familian Development Group • Familian Development Group • Familian Development Group • Familian Development Group • Familian Development Group