Familian Development Group
Completed Projects
Client List
Finance Partners
Familian Realty Group
Property Listings
Companies we own
City Stop Stores
Nevada Gaming Partners
Contact Us
Website By Pureblend
Project Listings
 

099storefourv0080_crop_tn.jpg
csub_clickonphoto.GIF
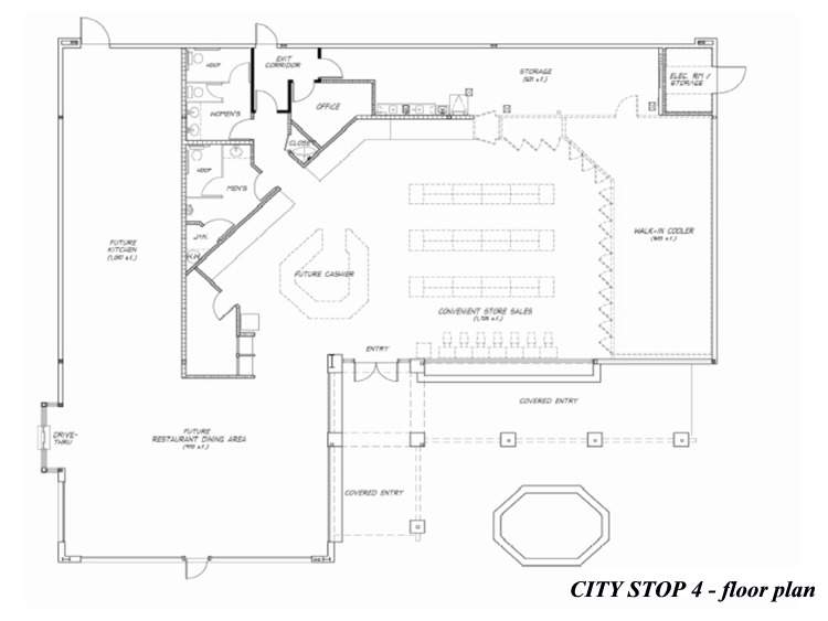
City Stop 4
Convenience Store
3320 N. Las Vegas Blvd
Las Vegas, Nevada
  5,067 Square Feet
City Stop 4 is a 5,000 square foot conveninence store including a fast food restaurant with a drive-thur window. City Stop hangs the Shell Oil flag and is open 24 hours a day, 7 days a week. The drive-thru restaurant is Jack-In-the-Box. City Stop is the only Convenience Store chain in Clark County with US Post Office in each location. Currenty their are 10 City Stop Convenience Stores in the Las Vegas Valley.
814cs4map_tn.jpg
csub_clickonphoto.GIF

964cs4siteplan_tn.jpg
csub_clickonphoto.GIF

132cs4store_tn.jpg
csub_clickonphoto.GIF

849cs4elevations_tn.jpg
csub_clickonphoto.GIF

849cs4elevations_tn.jpg
csub_clickonphoto.GIF

  RECORDS FOUND:  PAGES  1 of  
Find Property Listings
   
Keyword 
Find

Familian Development Group • Familian Development Group • Familian Development Group • Familian Development Group • Familian Development Group