|  | 
		| City Stop 3 | 
		
		|  | 
		
		| Convenience Store & Retail Building | 
		
		
		| 1680 - 1690 W. Sunset Road Henderson, NV
 | 
		
		
		
		|  | 
		
		
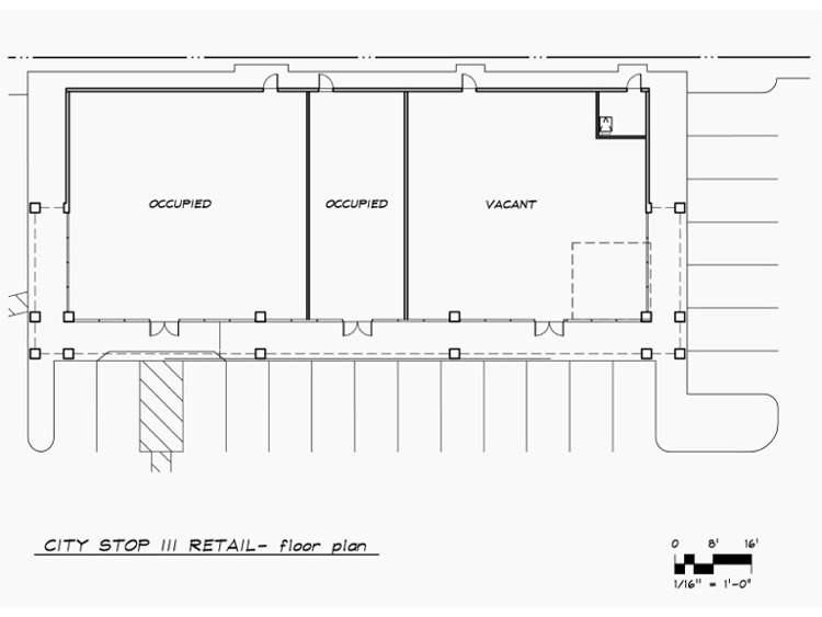
		| City Stop 3 is a 5,000 square foot conveninence store including a fast food restaurant with a drive-thur window. City Stop hangs the Shell Oil flag and is open 24 hours a day, 7 days a week. The drive-thru restaurant is Jack-In-the-Box. To the West of the property is 6,000 square foot retail center. The Tenants include the Money Tree and Fox's Pizza. City Stop is the only Convenience Store chain in Clark County with US Post Office in each location. Currenty their are 10 City Stop Convenience Stores in the Las Vegas Valley. | 
		
		
		|  | 
		
		
	
		
		
	
		
	
		
		
	
		
	
		
	
		
		
		
		
		
		
				
| 
	
		|   |  |  1 of |  | 
|  | Familian Development Group • Familian Development Group • Familian Development Group • Familian Development Group • Familian Development Group |